Cobyright © 2012 SCHEDEWY | Bauplanung

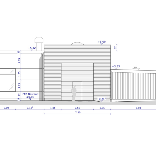
Ansicht

<<

Erweiterung Werkstattgebäude Fa. Thalheim GmbH

Am Promigberg 3, Dresden-Weixdorf

2012

Entwurf

 

Ansicht

Schnitt

 

 |||                      PROFIL   PROJEKTE   PARTNER   Impressum   Kontakt